Créer une alerte mail

A louer : Appartement - 1 pièce - Salins/gare routière

CLERMONT-FERRAND


Loyer : 420 € + 20 € de provisions sur charges.
Frais d'agence : 177.68 € + 66.63 € pour l'état des lieux.
Libre le 07/05/2026

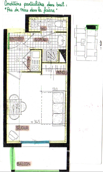
Surface : 22.21 m²
Meublé : Non
Pièce : 1 - Chambre : 0
Type de chauffage : Individuel
Place de parking : Oui


Etage : 2 -Immeuble : 4 étages - Avec ascenseur
Année de construction de l'immeuble : 1996
Référence : 3265
Voir le plan Imprimer la fiche descriptive
Classe énergie :
A B C D - 243 E F G
GES :
A B - 7 C D E F G

Adresse du bien : Résidence Le Gambetta 4 rue Villiet - CLERMONT-FERRAND

VIVRE A CLERMONT-FERRAND - NOMBRE D'HABITANTS : 145 000

Clermont-Ferrand est une ville universitaire du centre de la France, à proximité immédiate de la chaine des Puys classée au patrimoine mondial par l'UNESCO. Sa cathédrale gothique bâtie en pierres de lave, la basilique romane de Notre-Dame du Port arborant de jolies mosaïques, se trouvent à deux pas des fontaines et des statues de la célèbre place de Jaude. A découvrir également: l'Aventure Michelin qui retrace l’histoire d’une marque mondialement connue, et Vulcania au nord-ouest de la ville, le parc de loisirs et musée sur le thème des volcans avec spectacles interactifs.

Organiser une visite ? Des questions ?
Contactez-nous par téléphone ou via le formulaire ci-dessous :


Coordonnées de l'agence :
34 AVENUE JULIEN - 63000 CLERMONT-FERRAND
04.73.29.40.40


Heures d'ouverture de l'agence :
Du lundi au jeudi de 8h30 à 12h et de 14h à 18h30
Le vendredi de 8h30 à 12h et de 14h à 17h30


Juillet et Août :
Du lundi au vendredi de 9h à 12h et de 14h à 18h
Le samedi matin de 9h à 11h45

Découvrez les biens que nous avons selectionné pour vous :